Oggi è mercoledì 15 aprile 2026, 22:21

Tutti gli orari sono UTC + 1 ora [ ora legale ]




Apri un nuovo argomento Rispondi all’argomento  [ 19 messaggi ]  Vai alla pagina 1, 2  Prossimo
Autore Messaggio
 Oggetto del messaggio: Lavori a Sezze Romano - Roma Napoli via Formia
MessaggioInviato: lunedì 8 luglio 2024, 16:21 
Non connesso

Iscritto il: giovedì 3 dicembre 2009, 15:57
Messaggi: 1095
Ho visto che nella stazione di Sezze Romano (linea Roma Napoli via Formia) sono iniziati dei nuovi lavori. Da quello che si dice pare che dovranno eliminare qualche binario superfluo (come forse il binario 1 in primo piano che era della vecchia linea Velletri Terracina) prima dell'attivazione del nuovo ACC-M (Apparato Centrale Computerizzato Multistazione). L'ACC-M permetterà di incrementare il traffico e di gestire i sorpassi dinamici.
Qualcuno ha info aggiuntive su questi lavori di potenziamento?
Grazie.


Allegati:
Sezze stazione 6 7 24 (6).jpg
Sezze stazione 6 7 24 (6).jpg [ 107.02 KiB | Osservato 12470 volte ]
Top
 Profilo  
 
 Oggetto del messaggio: Re: Lavori a Sezze Romano - Roma Napoli via Formia
MessaggioInviato: giovedì 5 settembre 2024, 11:13 
Non connesso

Iscritto il: giovedì 3 dicembre 2009, 15:57
Messaggi: 1095
Ho letto in questa pagina https://www.rfi.it/it/news-e-media/comunicati-stampa-e-news/2024/6/17/rfi---linea-roma-napoli-via-formia--modifiche-alla-circolazione-.html che i lavori dovrebbero essere conclusi entro il 14 settembre.
A Sezze Romano è stata delimitata l'area di cantiere mentre a Priverno Fossanova i lavori non sono ancora iniziati. Qualcuno ha info su questi lavori?
Grazie.


Top
 Profilo  
 
 Oggetto del messaggio: Re: Lavori a Sezze Romano - Roma Napoli via Formia
MessaggioInviato: lunedì 16 settembre 2024, 14:01 
Non connesso

Iscritto il: giovedì 3 dicembre 2009, 15:57
Messaggi: 1095
Il 14 settembre è passato. L'ACCM è stato attivato ugualmente senza ridurre il piano dei binari o l'attivazione è stata rimandata con l'orario invernale?


Top
 Profilo  
 
 Oggetto del messaggio: Re: Lavori a Sezze Romano - Roma Napoli via Formia
MessaggioInviato: martedì 17 settembre 2024, 15:48 
Non connesso

Iscritto il: martedì 15 settembre 2020, 16:38
Messaggi: 253
No.
Così come a Roma Tuscolana sab e dom scorsi, sono state effettuate "attività propedeutiche" alla futura Attivazione degli ACC-M. (Che poi verranno attivati con opportuna precisa e dettagliata Circolare).

Esempio: circa un mese fa hanno attivato ACC-M a S. Benedetto val di Sambro, e a PC Precedenze.

S. Benedetto potrà essere gestito in PaD (Presenziato a Distanza, dal DCO BO) o Psp (Presenziato sul posto, da eventuale DM)
mentre Precedenze com il nuovo ACC-M è adesso attivo solo in PaD (dal DCO BO), non c'è più nulla sul posto per poterlo presenziare in loco.


Top
 Profilo  
 
 Oggetto del messaggio: Re: Lavori a Sezze Romano - Roma Napoli via Formia
MessaggioInviato: martedì 17 settembre 2024, 16:53 
Non connesso

Iscritto il: giovedì 3 dicembre 2009, 15:57
Messaggi: 1095
Grazie per le info.
Tempi previsti per l'attivazione?


Top
 Profilo  
 
 Oggetto del messaggio: Re: Lavori a Sezze Romano - Roma Napoli via Formia
MessaggioInviato: lunedì 7 ottobre 2024, 16:44 
Non connesso

Nome: Giovanni
Iscritto il: mercoledì 31 agosto 2022, 20:21
Messaggi: 117
Nella stazione di Sezze è prevista la soppressione dei binari di precedenze e l'eliminazione dei deviatoi, riducendo il piano dei binari dalla configurazione attuale a quella di una semplice fermata .

L'attuale Binario 2 diventerà il Binario 1 (direzione Napoli). Gli altri binari verranno eliminati e l'attuale Binario 3 diventerà il Binario 2 (direzione Roma).

E' previsto, inoltre, il rifacimento del piazzale antistante la stazione con sistemazione a verde. Dal lato dei binari, invece, sono previste nuove pensiline ed apparati di comunicazione per il servizio viaggiatori.

Il marciapiede dell'attuale binario 1 verrà esteso dal limite esistente in avanti fino al raggiungimento dell'attuale Binario 2 (futuro Binario 1). Da notare che l'attuale Binario 1, destinato ad essere soppresso, resterà integrato (ovviamente inattivo) sia nella zona pavimentata di attesa viaggiatori che nel giardino destinato a prenderne il posto , a testimonianza della vecchia conformazione del piano di stazione .


Top
 Profilo  
 
 Oggetto del messaggio: Re: Lavori a Sezze Romano - Roma Napoli via Formia
MessaggioInviato: venerdì 11 ottobre 2024, 10:23 
Non connesso

Iscritto il: giovedì 3 dicembre 2009, 15:57
Messaggi: 1095
Grazie per le info. Che peccato, da stazione di una certa importanza (un tempo anche di diramazione) a fermata. Spero che almeno vengano preservate la piattaforma girevole e la vecchia cabina acei. Chissà se Fondazione FS ha fatto un censimento di tutti i manufatti storici presenti nelle stazioni. Le nostre stazioni sono un museo a cielo aperto.


Top
 Profilo  
 
 Oggetto del messaggio: Re: Lavori a Sezze Romano - Roma Napoli via Formia
MessaggioInviato: venerdì 11 ottobre 2024, 13:02 
Non connesso

Nome: Giovanni
Iscritto il: mercoledì 31 agosto 2022, 20:21
Messaggi: 117
Al momento non è previsto il recupero della piattaforma girevole, che non avrebbe particolare senso nel restyling completo del sito. Per ora non è previsto nemmeno il recupero dell'edificio ACEI (difficilmente lo sarà in futuro).
Nel complesso, la stazione subirà uno stravolgimento soprattutto lato binari, con inserimento di nuove pensiline, sottopassaggi ed elementi architettonici moderni e funzionali che si integreranno con l'edificio storico.

Inoltre, è vero che le nostre stazioni sono ricche di manufatti storici. Il motivo della preservazione del Binario 1 in posizione calpestabile dagli utenti è proprio quello di evocare il tracciato storico di una vecchia linea del passato.

E non solo le stazioni: basti pensare ai numerosi viadotti monumentali abbandonati e alle gallerie in disuso. Molte di queste strutture sono state pensate e progettate da tecnici di fama internazionale , perfino quelli all'apparenza meno interessanti.
L'abbandono di tali opere è uno dei prezzi della evoluzione del sistema .


Top
 Profilo  
 
 Oggetto del messaggio: Re: Lavori a Sezze Romano - Roma Napoli via Formia
MessaggioInviato: sabato 12 ottobre 2024, 14:26 
Non connesso

Iscritto il: giovedì 3 dicembre 2009, 15:57
Messaggi: 1095
Anche Priverno Fossanova sarà trasformata da stazione a fermata ? Anche qui c'è una bellissima cabina Acei.

Capisco l'esigenza di modernizzare le stazioni però a Tarquinia per rendere più fruibile la banchina del binario 1 è stata demolita una vecchia torre dell'acqua. Spesso è difficile conciliare il progresso con la storia.


Top
 Profilo  
 
 Oggetto del messaggio: Re: Lavori a Sezze Romano - Roma Napoli via Formia
MessaggioInviato: sabato 12 ottobre 2024, 14:34 
Non connesso

Nome: Giovanni
Iscritto il: mercoledì 31 agosto 2022, 20:21
Messaggi: 117
Al momento no, essendo la radice del ramo per Terracina sul quale il servizio è sospeso a causa di una frana non ancora messa in sicurezza.


Top
 Profilo  
 
 Oggetto del messaggio: Re: Lavori a Sezze Romano - Roma Napoli via Formia
MessaggioInviato: domenica 13 ottobre 2024, 13:05 
Non connesso

Iscritto il: lunedì 24 agosto 2020, 16:09
Messaggi: 365
Dall'allegato risulta che anche in questo impianto, hanno messo quella specie di barriere (non sono sicuro che sia il termine corretto), di cui mi sono accorto poco tempo fa. Una cosa che proprio non mi va a genio è la rimozione di binari dalle Stazioni, riducendole a semplici fermate, a volte anche impresenziate. Perché fanno una cosa simile? Sembra quasi che vogliono privilegiare solo alcuni impianti e dato che forse più di tanto non possono migliorarli, rendono peggiori le condizioni di altri, con soppressioni di servizi ecc....E' semplicemente l'ennesima vergogna compiuta ai danni del servizio e dell'utenza. Qualcuno si sta chiedendo: in che senso? Ve lo spiego subito con due esempi.
1) Mettiamo caso che a Sezze, sta per fermarsi il regionale 21088 è che il frecciarossa 9646 leggermente in ritardo si trovi a transitare a Priverno. Grazie al fatto che Sezze è una Stazione di almeno 4 binari (non ricordo con precisione quanti ne sono in totale), il regionale verrà fatto arrivare/partire sul binario 4, permettendo al frecciarossa di transitare sul binario 3 superandolo (precedenza). Un'operazione simile, non si potrà più effettuare, vista l'imminente rimozione dei binari ed ecco il danno al servizio.
2) Nel futuro Sezze, sarà divenuta una semplice fermata. Facciamo per ipotesi che in questa fermata, stia giungendo il regionale 21088 e che dietro di lui ci sia ancora il frecciarossa 9646 che deve superarlo. Non potendo effettuare il sorpasso a Sezze, il frecciarossa, sarà costretto a rallentare tantissimo già a Priverno e ad attendere che il regionale venga ricevuto nel primo impianto possibile dove poter svolgere una precedenza (in questo caso se ben ricordo parliamo di Latina). Ed ecco descritto il danno all'utenza.

Nota: Lo stesso schifo (perché solo così si può definire una situazione del genere) è stato causato anni fa anche ai danni delle Stazioni (ora semplici fermate) di Napoli Mergellina e Napoli Piazza garibaldi e non solo. Infatti quando accadono/accadranno guasti, non si possono/potranno effettuare più precedenze, col risultato che se un Treno in direzione Salerno (oppure in direzione Campi Flegrei) o in entrambe le direzioni si arresti/arrestino/arresterà/arresteranno in una di queste fermate e che non riparta/ripartano/ripartirà/ripartiranno a causa dei più svariati motivi, si blocca/bloccherà l'intera circolazione, con tutti i disagi che ne seguono/seguiranno..........


Top
 Profilo  
 
 Oggetto del messaggio: Re: Lavori a Sezze Romano - Roma Napoli via Formia
MessaggioInviato: lunedì 14 ottobre 2024, 13:21 
Non connesso

Iscritto il: giovedì 3 dicembre 2009, 15:57
Messaggi: 1095
Faccio un'ipotesi, forse con il nuovo ACCM sarà possibile effettuare sorpassi dinamici in linea come in Tirrenica Nord quindi non serviranno più tante stazioni con binari di precedenza?


Top
 Profilo  
 
 Oggetto del messaggio: Re: Lavori a Sezze Romano - Roma Napoli via Formia
MessaggioInviato: mercoledì 16 ottobre 2024, 14:49 
Non connesso

Iscritto il: martedì 15 settembre 2020, 16:38
Messaggi: 253
Si tratta di un vecchio Progetto denominato "Linea Snella", attuato progressivamente su tutto il territorio nazionale, se non ricordo male voluto, a suo tempo, da un certo Ing. Moretti.

Semplicemente meno Deviatoi, meno Segnali, meno Acei/Acc, meno Stazioni = meno Manutenzione, meno Personale, meno guasti, ecc.....
NON è stato assolutamente preso in considerazione che, in qualche caso, quei Binari/Deviatoi/Stazioni tolti/tolte, avrebbero fatto comodo....
Oggi si ragiona privilegiando termini economici per la gestione di una linea, anzichè termini di opportunità di circolazione, che magari nei moderni tempi attuali quell'impianto può servirti una volta l'anno.


Top
 Profilo  
 
 Oggetto del messaggio: Re: Lavori a Sezze Romano - Roma Napoli via Formia
MessaggioInviato: mercoledì 19 febbraio 2025, 12:32 
Non connesso

Iscritto il: giovedì 3 dicembre 2009, 15:57
Messaggi: 1095
In questo video di 3 giorni fa si può notare che a Sezze hanno rimosso i binari 4 e 6. Sul binario 2 c'è un treno cantiere Salcef: https://www.youtube.com/watch?v=CES_PjYdP00


Top
 Profilo  
 
 Oggetto del messaggio: Re: Lavori a Sezze Romano - Roma Napoli via Formia
MessaggioInviato: sabato 1 marzo 2025, 17:13 
Non connesso

Iscritto il: martedì 15 settembre 2020, 16:38
Messaggi: 253
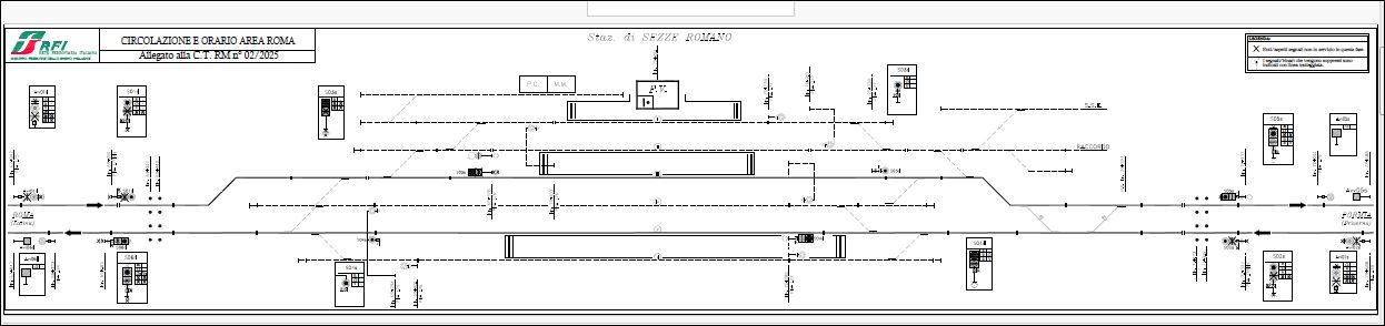
Alle ore 04.00 di oggi Sabato 01.03.2025 è stata Attivata la nuova Configurazione della Stazione di Sezze Romano, che rimane Stazione perchè conserva 2 Comunicazioni (4 Deviatoi) tra i 2 Binari di Corsa lato Napoli.
Vengono Dismessi e demoliti i Binari 1, 2, 4, 6, e tutti gli altri tronchini secondari.
Rimangono attivi solo il Bin 3 di Corsa Dispari, ed il Bin 5 di Corsa Pari, e come detto solamente le 2 comunicazioni lato Napoli tra questi 2 Binari.
Di conseguenza sono stati modificati anche i vari Segn Protezione e Partenza.
Questa è una fase intermedia, in attesa di ulteriori modifiche atto Attivazione del futuro ACC-M che in questa tratta sarà
"ACC-M Latina-Formia", sicuramente gestito dalla Sala DCO Roma Termini.

In ogni caso nel sito di RFI trovate la Circolare di Attivazione n ROMA 02/2025 di oggi, con tutti i particolari.
Qui sotto il nuovo Piano Schematico di Sezze Romano, tratti tratteggiati dismessi e demoliti, tratti continui sono quelli Attivi.


Allegati:
Cattura.JPG
Cattura.JPG [ 77.11 KiB | Osservato 6771 volte ]
Top
 Profilo  
 
Visualizza ultimi messaggi:  Ordina per  
Apri un nuovo argomento Rispondi all’argomento  [ 19 messaggi ]  Vai alla pagina 1, 2  Prossimo

Tutti gli orari sono UTC + 1 ora [ ora legale ]


Chi c’è in linea

Visitano il forum: Nessuno e 40 ospiti


Non puoi aprire nuovi argomenti
Non puoi rispondere negli argomenti
Non puoi modificare i tuoi messaggi
Non puoi cancellare i tuoi messaggi
Non puoi inviare allegati

Cerca per:
Vai a:  
banner_piko

Duegi Editrice - Via Stazione 10, 35031 Abano Terme (PD). Italy - Tel. 049.711.363 - Fax 049.862.60.77 - duegi@duegieditrice.it - shop@duegieditrice.it
Direttore editoriale: Luigi Cantamessa - Amministratore unico: Federico Mogioni - Direttore responsabile: Pietro Fattori.
Registro Operatori della Comunicazione n° 37957. Partita iva IT 05448560283 Tutti i diritti riservati Duegi Editrice Srl