Oggi è lunedì 20 aprile 2026, 22:54

Tutti gli orari sono UTC + 1 ora [ ora legale ]




Apri un nuovo argomento Rispondi all’argomento  [ 5 messaggi ] 
Autore Messaggio
 Oggetto del messaggio: tracciato su due box
MessaggioInviato: sabato 6 luglio 2024, 11:56 
Non connesso

Iscritto il: venerdì 13 gennaio 2006, 20:13
Messaggi: 1081
Località: roma
Allegato:
box_battistini_bis03.jpg
box_battistini_bis03.jpg [ 94.85 KiB | Osservato 3250 volte ]


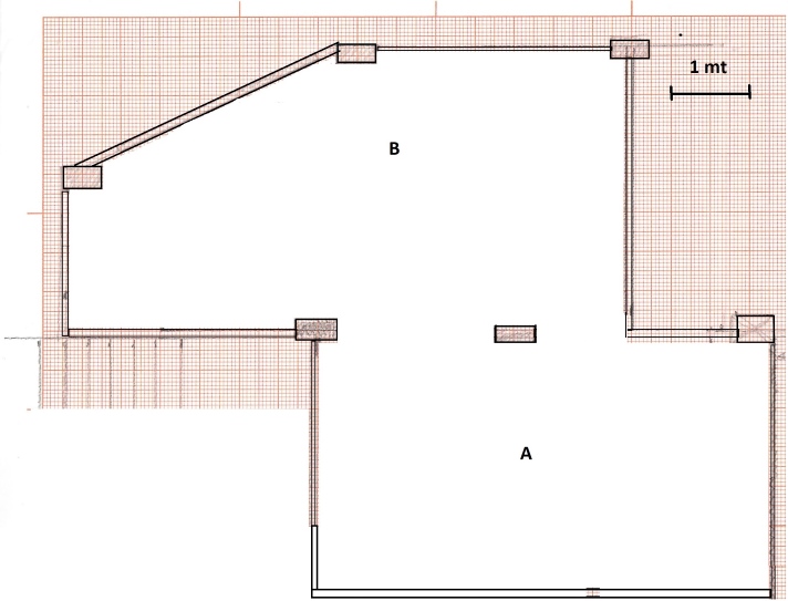
In figura la pianta del locale dove farò il nuovo plastico.
La parte A è pienamente disponibile. E’ il soppalco della parte A del box sottostante. Quota del pavimento del soppalco a 210 cm e soffitto a 420. Ho 210 cm di spazio in altezza. Il piano dei binari, per rispettare la schiena, lo farei a 125 cm.
La parte B appartiene a un box adiacente dove non c’è il soppalco (il muro di confine posso demolirlo dove serve e alla quota che serve). Alto 420, potrei realizzare strutture a mensola per una piena linea (a 335 cm dal pavimento del box B). Se necessario per manutenzione, raggiungerei il tracciato con una scala.

Apro la raccolta di idee, prima di iniziare i lavori


Top
 Profilo  
 
 Oggetto del messaggio: Re: tracciato su due box
MessaggioInviato: sabato 6 luglio 2024, 12:51 
Non connesso

Iscritto il: venerdì 20 gennaio 2006, 19:41
Messaggi: 2863
Bello, interessante ma... 'nc'ho capito niente. :mrgreen:
E poi a dove si entra ? :wink:


Top
 Profilo  
 
 Oggetto del messaggio: Re: tracciato su due box
MessaggioInviato: sabato 6 luglio 2024, 15:49 
Non connesso

Iscritto il: venerdì 13 gennaio 2006, 20:13
Messaggi: 1081
Località: roma
si entra da una scala che spunta, come fosse una botola, un metro a sinistra dalla lettera A.
quindi si è liberi di ignorare l'ingresso lungo le pareti


Top
 Profilo  
 
 Oggetto del messaggio: Re: tracciato su due box
MessaggioInviato: sabato 6 luglio 2024, 18:14 
Non connesso

Iscritto il: domenica 3 gennaio 2010, 20:36
Messaggi: 9219
Località: la citta' della 3 t: torri, tortellini e ...
Ottimo non avere porte...
Tracciato perimetrale con isole, senza eliche !
Buon we
Stefano.


Top
 Profilo  
 
 Oggetto del messaggio: Re: tracciato su due box
MessaggioInviato: sabato 6 luglio 2024, 19:57 
Non connesso

Iscritto il: venerdì 13 gennaio 2006, 20:13
Messaggi: 1081
Località: roma
Allegato:
box5.jpg
box5.jpg [ 102.1 KiB | Osservato 1915 volte ]

in rosso doppio binario;

il binario sotto la lettera A mi serve per girare gli elettrotreni e le vaporiere; fa anche da binario di programmazione; sulla A metto un tavolo con computer, saldatore, SprogII, ecc ecc


Allegati:
box4.jpg
box4.jpg [ 98.78 KiB | Osservato 3059 volte ]
Top
 Profilo  
 
Visualizza ultimi messaggi:  Ordina per  
Apri un nuovo argomento Rispondi all’argomento  [ 5 messaggi ] 

Tutti gli orari sono UTC + 1 ora [ ora legale ]


Chi c’è in linea

Visitano il forum: Majestic-12 [Bot] e 3 ospiti


Non puoi aprire nuovi argomenti
Non puoi rispondere negli argomenti
Non puoi modificare i tuoi messaggi
Non puoi cancellare i tuoi messaggi
Non puoi inviare allegati

Cerca per:
Vai a:  
banner_piko

Duegi Editrice - Via Stazione 10, 35031 Abano Terme (PD). Italy - Tel. 049.711.363 - Fax 049.862.60.77 - duegi@duegieditrice.it - shop@duegieditrice.it
Direttore editoriale: Luigi Cantamessa - Amministratore unico: Federico Mogioni - Direttore responsabile: Pietro Fattori.
Registro Operatori della Comunicazione n° 37957. Partita iva IT 05448560283 Tutti i diritti riservati Duegi Editrice Srl